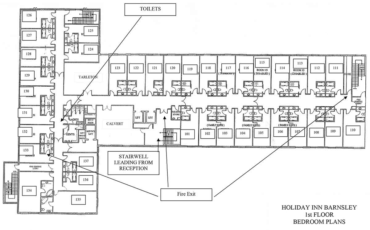
first floor rooms and exhibitors

Calvert Room - in memory of John (Lurch), his full system
Garrard 401, 750D arm, Ortofon 2M Black, BB3 phono. Innuos Zenith Mk3, Audiolab 6000CDT, Aqua Formula xHD rev2 DAC. Mastersound Compact 845 amplifier, Heco Direkt Dreiklang speakers

Tarleton Room - Shoebox Ady and Julian (Bigrod)
Source, Kuzma Stabi M walnut turntable, Kuzma 4.11 tonearm, Ortofon SPU Royal N Mc cartridge, Consolidated Audio 1/32 Step Up Transformer with Nano Crystal Core, SJS Model 6 Phonostage, SJS Model 7 Pre Amplifier, Yamamoto A08SS power Amplifier using Original RCA 45 Valves, 2 Watts per Channel, Black Rhodium Polar Ninja DCT ++ Speaker cables, Living Voice Tone Scout speakers modified by LV to run as 5-way horns, with TAD 2002 HF Compression Drivers and Fostex 500 MK2 super tweeters. Townshend Isolation speaker platforms, Velodyne Direct Drive 15" Subwoofer. Vincent Power amp and Cabasse Kara speakers

Room 101 - Terryg1
Naim nac72v, hi cap, nap 250. Rotel RCD 991 cd player, MF tri vista DAC. Snell Js mk 2 or Winslow Audio studio monitors. Quad 11 power amps, Audio Note P Zero or Adcom pre amp

Room 103 - Gordon Watson (Burning Sounds)
Eversolo DMP-A8 (streamer, DAC, pre-amp). Linkwitz ASPv2 (analogue 8-channel active x-over). Apollon NC8350MP (8-channel power amp). Linkwitz LX521.4Mg (4-way active dipole speakers)

Room 104 - Diceman
Front end: Raspberry pi, Allo boss/isolator. Amp: SJS Arcadia Model 1 upgraded, plus Krell KSA50. Possibly Modified Leak Stereo 20 or AVI Lab series integrated. Speakers: Yamaha NS1000M

Room 107 - Ed Howarth
Source: Streaming from hard disk, Marantz 63 CD player as backup. Quad 909 amplifier, Quad 405 2 as backup. Room correction, streamer and crossover: MiniDSP SHD with Dirac. Speakers: Q Acoustics 2010, REL S3 subs

Room 108 - Eddie
Source: Streaming or files. DAC: SMSL M500 MkII. Amp: Aiyima A7. Speakers: Memorex 305 (1990s, restored and upgraded/modified)

Room 110 - Avondale Audio
Full details on the commercial exhibitors page: trade exhibitors

Room 112 - Bob (It Cost How Much!?!)
Streamer/Server: Innuos Statement Next Generation. DDC: Gustard U18. DAC: Gustard R26. Preamp: Trilogy 909. Power Amp: Trilogy 990. Speakers: Pawel Ensemble PA-1 Reference

Room 117 - paul2718
Horizontal triplet of Quad ELS57. Three nCore mono power amps. Custom preamp. Technics SP10/2, RB330, Goldring or Audio Technica cart. Linn LP12, custom subchassis, Linn Ekos, Linn Troika.

Room 118 - Jamie
Technics SL1200 with Rega arm. Hi-Fi News branded E.A.R. preamp. WAD 300b amp. Modified Mordant speakers (with Romagna ribbon horns)

Room 119 - Adam (Beobloke)
Turntables: Yamaha GT-2000 and PF-800. CD Player: Yamaha CDX-1030. Amplifiers: Yamaha A-960II integrated. MC Head amp: Yamaha HA-1 and possibly HA-2 (if it works...). Speakers: GLL Magnum

Room 120 - Radical Chap
Roksan Blak CD player, Wiim Ultra, Musical Fidelity A300 integrated with JS Audio stage 2 mods, Musical Fidelity A300cr power amp, Spendor BC1 speakers

Room 122 - Rob Marsden
Tandberg monitors or Tandberg TL5020 speakers. Tandberg TR-2080 receiver. Tandberg TD20a reel-to-reel. Tandberg TDC310 mk 2 tape deck. Yamaha YP800 with SME tonearm. Pioneer C73 pre amp. Topping DAC

Room 125 - Bolski
QLN speakers. Quantum pre and power amp. Wiim streamer. Logic DM101 and or Pink Triangle Original

Room 132 - Karl (Karlsushi) and David (Agerstone)
Bluesound Node (with Sean Jacobs PSU), Bricasti M3 DAC/pre, ESS 500, Adcom GFA-5300 or Icon Audio MB30SE amps. Refurbished early Klipsch Heresys and Celestion Ditton 44 speakers.

Room 135 - Dunc
dCS Vivaldi apex dac, upsampler plus, and clock. SMSL P200T transport. Vitus SIA030 integrated amp. Philips N4520 reel to reel. Kudos Titan 808 speakers. Melco N1ZS,

auction, raffle and bring & buy

proceeds from the raffle and auction will be donated in full to the show charity, the Barnsley Hospice
Some donations will also be made from sales in the Bring & Buy area. All items in the raffle and auction have been very kindly donated by commercial companies and forum members. Full details are on the Raffle and Auction page.